DÖRT AYAK (KÜNKBAŞI) CAMİ - Niğde
Dörtayak Cami
Dörtayak Cami
Dörtayak Cami
Dörtayak Cami
Kimlik
| Adı |
DÖRT AYAK (KÜNKBAŞI) CAMİ |
| Envanter No |
- |
| Harita No |
- |
| Mah. Köy - Mevkii |
|
| Adres |
Yenice Mahallesi Kemali Ümmi Caddesi Merkez/NİĞDE |
| Pafta |
|
| Ada |
|
| Parsel |
|
Koruma Durumu
| Koruma Derecesi - Anıtsal |
|
| Koruma Derecesi - Çevresel |
|
| Koruma Derecesi - Aykırı |
|
| Bugünkü Sahibi |
|
| Bakımından Sorumlu Olması Gereken Kuruluş |
|
Diğer Özellikler
| Yaptıran |
EBU BEKİR AĞA |
| Yapım Tarihi |
1764-1765 |
| Yapan |
|
| Kültür Dönemi |
|
| Kitabe |
|
| Vakfiye |
|
| Genel Tanım |
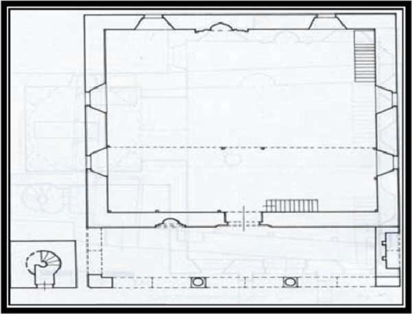
Kuzey-güney doğrultusunda eğimli bir arazi üzerine yerleştirilen cami, düz ahşap tavanlı camiler gurubundadır. |
Kullanım Durumu
| Koruma Durumu |
|
| Taşıyıcı Yapı |
|
| Üst Yapı |
|
| Dış Yapı |
|
| Süsleme Elemanları |
|
| Rutubet |
|
Ayrıntılı Tanımı
| Yapılan Onarımlar |
Geçmiş dönemlerde onarımlar görmüştür. |
| Ayrıntılı Tanımı |
Kuzey-güney doğrultusunda eğimli bir arazi üzerine yerleştirilen cami, düz ahşap tavanlı camiler gurubundadır. Cami, dıştan 12.70 x 13.45 m. boyutlarındaki harim ile kuzeye yerleştirilen üç gözlü son cemaat yerinden oluşmaktadır. Ahşap hatıllı cephe duvarında sarımtırak renkte kaba yonu taş, kapı mihrap, paye ve kemerler ile duvar köşe bağlantılarında ince yonu taş, son cemaat yerindeki sütunlarda mermer, örtü sisteminde ise ahşap ve kiremit malzeme kullanılmıştır. Harim kısmına kuzey duvarı ortasına yerleştirilen taş söveli ve ahşap lentolu kapıdan girilir. Yakın zamanlarda yapılan son cemaat yeri tarafında tek şerefeli minare bulunur. Cami sadedir. Dikkati çeken elemanlar son cemaat yerindeki mihrabiye ile harimdeki mihraptır. Mihrap istiridye yivli kavsaraya sahiptir. |
| Su |
YOK |
| Elektrik |
VAR |
| Isıtma |
VAR |
| Orjinal Kullanım |
Cami |
| Bugünkü Kullanımı |
Cami |
| Önerilen Kullanım |
Cami |
| Tescil Kararı |
15.12.1979/A-2027 - 31.07.1993/1529 |
| Yayın Dizini |
Doç.Dr. Mehmet ÖZKARCI; Niğde'de Türk Mimarisi, TTK.2001ANK. |
| Ekler |
|
| Revizyon |
|
Görüntülenme Sayısı :
5149
Eklenme Tarihi :
21 Ocak 2015 Çarşamba
Güncellenme Tarihi :
30 Ocak 2015 Cuma