AKMEDRESE - Niğde
Ak Medrese
Ak Medrese
Ak Medrese
Ak Medrese
Ak Medrese
Ak Medrese
Kimlik
| Adı |
AKMEDRESE |
| Envanter No |
51.00.0(1.0) |
| Harita No |
19L-II |
| Mah. Köy - Mevkii |
Saruhan mahallesi |
| Adres |
Saruhan mahallesi Ak Medrese Sokak Merkez/NİĞDE |
| Pafta |
36 |
| Ada |
285 |
| Parsel |
2 |
Koruma Durumu
| Koruma Derecesi - Anıtsal |
2 |
| Koruma Derecesi - Çevresel |
|
| Koruma Derecesi - Aykırı |
|
| Bugünkü Sahibi |
|
| Bakımından Sorumlu Olması Gereken Kuruluş |
Kültür Ve Turizm Bakanlığı |
Diğer Özellikler
| Yaptıran |
Alibey |
| Yapım Tarihi |
1409 |
| Yapan |
|
| Kültür Dönemi |
Selçuklu |
| Kitabe |
Var |
| Vakfiye |
Var |
| Genel Tanım |
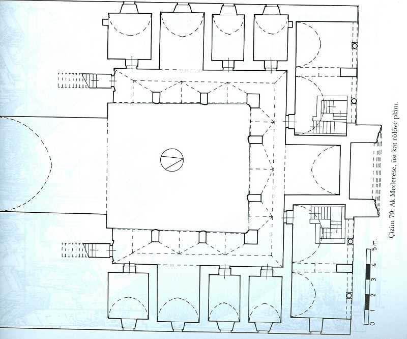
İki katlı avlulu, Selçuklu tipi medrese. |
Kullanım Durumu
| Koruma Durumu |
A |
| Taşıyıcı Yapı |
A |
| Üst Yapı |
C |
| Dış Yapı |
A |
| Süsleme Elemanları |
B |
| Rutubet |
C |
Ayrıntılı Tanımı
| Yapılan Onarımlar |
1956-60 yılları arasında MEB tarafından yapılan restorasyon sonucu orijinal görünümüne ulaşmıştır. |
| Ayrıntılı Tanımı |
Kapısı üzerindeki inşa kitabesine göre, H.812 (M.1409-10) yıllarında yapılmıştır. Bazı onarımlarla günümüze gelen medrese orijinal durumunu muhafaza etmektedir. Yapı I.Dünya Savaşı sıralarında nalbant hane olarak kullanılmış 60 öğrencisi ile medrese fonksiyonunu sürdürmüş, 1936 yılından itibaren çevrede bulunan tarihi eserler medresede toplanarak 1939-1950 yılları arasında ise II. Dünya Savaşı tehlikesine karşı İstanbul Arkeoloji Müzesi'nin deposu olarak hizmet vermiş 1950-57 yılları arası Niğde Müzesi deposu, 1957-1977 yılları arası Niğde Müze Müdürlüğü olarak hizmet vermiştir. 1997'den beri taş eserler medresede muhafaza edilmektedir. Bina açık avlulu ve iki katlı medreseler gurubundadır. Alt kat iki eyvanlı bir şemaya sahipken üst katta ise iki kat yüksekliğinde tutulan ana eyvan ile beraber dört eyvanlı bir düzenleme görülür. Plan şeması son derece simetrik olup Türk Medrese Mimarisinde tek örnektir. Kuzey-güney doğrultusundaki yapı; dıştan 21.80 x 24.50 m. boyutlarındadır. Ortasında su kuyusu bulunan 8.35 x 9.40 m. ebadında avlu doğu, batı ve kuzeyden üçer gözlü revakla, güneyden de ana eyvanla kuşatılmıştır. Üst kat ise; kuzeyde dışa kaş kemerlerle açılan sofalar, avluyu üç yönden kuşatan revaklardan ibarettir.
|
| Su |
YOK |
| Elektrik |
VAR |
| Isıtma |
VAR |
| Orjinal Kullanım |
Medrese |
| Bugünkü Kullanımı |
|
| Önerilen Kullanım |
|
| Tescil Kararı |
15/07/1978/A-1207 31/07/1993-1529 |
| Yayın Dizini |
Doç.Dr. Mehmet ÖZKARCI; Niğde'de Türk Mimarisi, TTK.ANK.2001--Niğde İl Yıllığı ANK.1973--A.GABRİEL N |
| Ekler |
|
| Revizyon |
- |
Görüntülenme Sayısı :
18818
Eklenme Tarihi :
27 Şubat 2015 Cuma
Güncellenme Tarihi :
27 Şubat 2015 Cuma